lacaton & vassal projets / projects publications agence / office
disclaimer
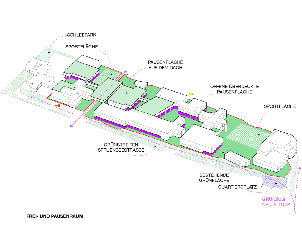
Campus Altona, Hambourg
Campus Altona, Hamburg
 
lieu / location: Hambourg Allemagne
année / year: 2017
catégorie / type: education
état / status: competition, unbuilt / concours, non réalisé
surface / size: 24 696 m2/sqm
client: Ville de Hambourg